上海龙湖天钜公馆(龙湖天钜公馆)最新网站|龙湖天钜欢迎您|龙湖天钜楼盘详情
扫描到手机,新闻随时看
扫一扫,用手机看文章
更加方便分享给朋友
闵行颛桥「龙湖天钜」公馆
售楼处热线:400-9696-224【营销中心】
网上售楼处〢欢迎来电咨询〢专业一对一热情服务
现在处于疫情期间,看房需提前预约,到售楼处请戴好口罩,做好疫情防护,谢谢配合
【龙湖天钜】
不限购联排别墅:419㎡~439㎡
售楼处热线:400-9696-224
花园赠送30-90平
均价36000元/㎡ 总价1650万起
地铁上盖、公园上盖、商业上盖
2018年,龙湖集团售楼处热线:400-9696-224携手上海南部科创中心共同发布了最新产品——龙湖闵行中心!一座约35万㎡的TOD模式“巨无霸”商业综合体于此起飞。
开发商:龙湖地产
区域:上海南部科创中心
售楼处热线:400-9696-224
物业公司:龙湖物业
物业费:9.5元/月/㎡
单价:约4.8万/㎡
首付比例:8成
绿化率:35%
建筑层高:地上三层,地下两层
总体量:首开20套
产品类型:联排别墅
房屋类型:商办
户型面积:约419-439平
花园面积:约25平起
楼盘总价:约2000万起
交房日期:2023年6月
交房标准:精装
楼盘介绍
▍媲美硅谷的花园商务办公
龙湖天鉅售楼处热线:400-9696-224项目位于闵行南板块剑川路核心商务区,徐汇南板块,剑川路核心商务区,紫竹创新创业走廊核心地,区域坐拥两大国家级的产业园区闵行经济开发区和紫竹高新技术开发区;其中闵行开发区以机电产业为主导,紫竹高新区则以航空、软件科技及新能源为支柱产业,两大园区每年的生产总值近2000亿,是徐汇南持续发展的重要支撑;
板块红利
南部科创中心是上海先进制造业核心承载区。售楼处热线:400-9696-224积极打造高端装备、人工智能、新一代信息技术、生物医药等四大新兴产业集群,提升创新集聚功能。
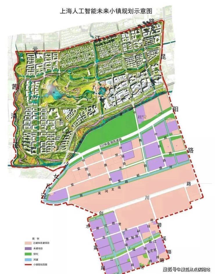
上海人工智能未来小镇正式落座马桥!闵行经济开发区、紫竹科技园区、航天城为板块提供大量高端人才,高消费人群,支撑板块房价发展
闵行承载南上海
高新智造带重任
交通配套
四通八达立体交通网络;5分钟可上嘉闵高架、20分钟直达虹桥交通枢纽、30分钟可达徐汇和前滩太古里商圈
轨道交通
上海至美颜值地铁5号线剑川路地铁口,5站即可到达1号线,换乘多条线路,到达上海各个区域
商业配套 【上海闵行龙湖天街】
龙湖天街商业面积9.2万方,售楼处热线:400-9696-224定位“享时光,慢生活”,龙湖17载商运能力,必将满足您日后的工作生活需求,同时好的商业配套也是您未来保值增值的保障
周边商业定位集合时尚流行服饰、潮流精品、运动休闲、多元特色人气美食、儿童教育及培训体验、生活服务体验融合一体的一站式大型商业体
教育资源
上海交大、华师大、复旦万科、马桥文莱、上海德威英国国际学校、上海德闳学校、上海斯代文森国际高中,周边顶级教育资源云集
医疗配套
复旦大学附属第五人民医院、复旦大学附属闵行中心医院(三甲)、交大附属瑞金医院南院(规划中)
小区实景图
样板间实景
1F
2F
3F
B1
B2
B2车库
闵行颛桥「龙湖天钜」
售楼处热线:400-9696-224【营销中心】
网上售楼处〢欢迎来电咨询〢专业一对一热情服务
现在处于疫情期间,看房需提前预约,到售楼处请戴好口罩,做好疫情防护,谢谢配合
声明:本文由入驻焦点开放平台的作者撰写,除焦点官方账号外,观点仅代表作者本人,不代表焦点立场。
